Casa D

Side facade of Casa D by Cometa Architects with closed windows, vertical metal slats, and lush garden vegetation.

Residential, Expansion/New built. Holargos, Athens, Greece. Completed. 2023

Side facade of Casa D by Cometa Architects with closed windows, vertical metal slats, and lush garden vegetation.
Terrace of Casa D by Cometa Architects in Athens featuring terrazzo flooring, green metal chairs, and minimalist facade with vertical shutters.
Detail of the curved opening framing the pink steel staircase at Casa D by Cometa Architects in Athens.
Terrace of Casa D by Cometa Architects in Athens featuring terrazzo flooring, green metal chairs, and minimalist facade with vertical shutters.
Arched exterior door of Casa D by Cometa Architects in Athens featuring vertical aluminum slats, textured plaster wall, and potted cactus.
Location Holargos, Athens, Greece
Size 187 m2 + Basement
Plot Area 302 m2
Typology Residential, Expansion, New bulit
Client Private
Status Completed 2023
Study Team Faidra Matziaraki, Victor Gonzalez Marti, Nicolas de Leon
Structural, Electromecanical team Georgios Tsalikidis, Despina Georgiadou, Agathi Balampani
Construction company Tsalikidis Constructions
External Consulting LUUN Lighting , Niki Chronopoulou Design
Photo Giorgos Sfakianakis
Awards/Mentions Grail Winner 2024. Doma FInalist 2024

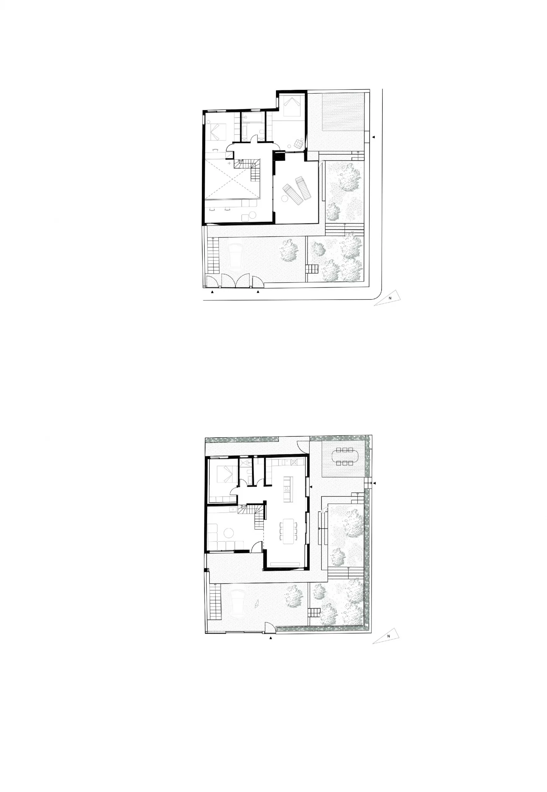
Surrounded by taller buildings with intrusive balconies, the house was redesigned as an opaque, volumetric form—a modern fortress that defends its interior life from external pressures. Rather than compete with vertical development, the design preserves a low-profile silhouette, reducing the visual and environmental impact of new construction in the dense urban fabric. By retaining the original concrete foundations and structure, the project embraces sustainability through adaptive reuse. Select portions of the slabs were removed to create double-height spaces, while a lightweight steel addition on top respects the region’s seismic demands.

 

Interior of Casa D by Cometa Architects in Athens featuring a pink steel staircase, grey fireplace, and wooden floor with a blurred figure ascending

Animated moodboard showing the material palette of Casa D by Cometa Architects, including terrazzo, textured plaster, and soft green lacquered finishes.
Detail of Casa D kitchen by Cometa Architects in Athens showing vertical aluminum shutters casting striped shadows on a white countertop and black chair.
Interior of Casa D by Cometa Architects in Athens showing a pink steel staircase, wooden floor, and dining area with large windows opening to the garden.
Study area of Casa D by Cometa Architects in Athens with a minimalist desk, wooden floor, and natural light from a vaulted ceiling.
Upper floor of Casa D by Cometa Architects in Athens with wooden flooring, indoor plants, and soft natural light entering through large sliding windows.

To ensure privacy from the taller neighboring buildings, the house takes on an opaque monolithic form. Light enters through a strategically carved west corner, where an exterior patio creates a small oasis between the intersecting streets, shaded by mature trees. Inside, the new layout revolves around the central double-height space, where a sculptural staircase connects the living and kitchen areas below with the bedrooms and a skylit studio above, filling the interiors with diffused natural light.

 

Exterior view of Casa D by Cometa Architects in Athens showing curved grey plastered volume surrounded by urban buildings and Mediterranean vegetation.
Detail of Casa D garden by Cometa Architects in Athens showing terrazzo steps, green aluminum shutters, cactus in terracotta pots, and outdoor chair under Mediterranean light.
Interior view of Casa D by Cometa Architects in Athens showing a pink steel staircase, sculptural lighting, and exposed structural beams.
Aerial view of Casa D garden by Cometa Architects in Athens showing terrazzo steps, green metal chair and table, and terracotta pots with Mediterranean plants.
Garden of Casa D by Cometa Architects in Athens featuring terrazzo steps, green metal furniture, terracotta pots, and lush Mediterranean vegetation.
Main bathroom of Casa D by Cometa Architects in Athens with white vertical tiles, copper fixtures, built-in bathtub, and minimalist vanity.
Double-height living space of Casa D by Cometa Architects in Athens featuring a pink steel staircase, minimalist lighting, grey sofa, and wood flooring.
Outdoor dining area of Casa D by Cometa Architects in Athens with red slatted table, green aluminum pergola, and arched door casting dappled shadows on plastered wall.
Detail of Casa D bedroom by Cometa Architects in Athens showing a wooden lounge chair beside a narrow window and an open design magazine on oak flooring.
Kitchen and dining area of Casa D by Cometa Architects in Athens featuring green cabinetry, white island, terrazzo floor, and black cylindrical extractor.
Minimalist bedroom of Casa D by Cometa Architects in Athens with elevated wooden platform bed, soft natural light, and sculptural lounge chair
Minimalist bathroom of Casa D by Cometa Architects in Athens with soft pink tiles, black fixtures, and built-in vanity under natural light.

The garden, spread across three levels, preserves existing fruit trees and introduces new Mediterranean vegetation, enhancing comfort and shade during Athens’s hot summers.

 

Casa D integrates an advanced energy-efficient system, combining aerothermal technology, radiant and cooling floors, and fan coils for climate control. The system is powered by solar panels and photovoltaic collectors installed on the new flat roof, supplying renewable energy to both the home and the municipal power grid.

 

Through this precise interplay of old and new, Cometa Architects redefines the potential of adaptive reuse, achieving a home that is both contextually integrated and environmentally responsive—a model of sustainable architecture in Athens.

Related projects

WhatsApp